Баня из кирпича

Площадь
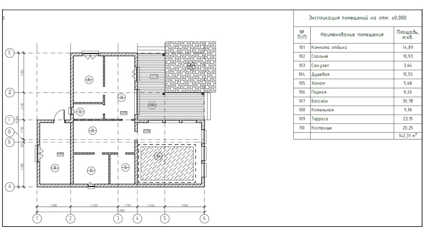
142 м²
Участок
9 сот
Материал
поризованный кирпич
Кол-во этажей
1
Об объекте
Получите подробную консультацию
по нему
по нему
И мы ответим на интересующие
вопросы о проекте и комплектации
вопросы о проекте и комплектации
Если у вас остались вопросы, смело пишите нам!
Все расскажем, поможем с выбором проекта
и расчетом стоимости
Все расскажем, поможем с выбором проекта
и расчетом стоимости
Пн-Пт с 10:00 до 19:00
Санкт-Петербург, ул. Большая Зеленина 43
Наш офис, ул. Большая Зеленина, 43
Заявка отправлена!
Спасибо за уделенное время!
Не хотите ждать, пока мы свяжемся с вами?
Вы можете позвонить сами!
Вы можете позвонить сами!
В форме остались
несохраненные данные
Уверены, что хотите закрыть форму обратной связи?



