Главная -
Домокомплекты -
145 м²
Общая площадь
дома с террасой
дома с террасой
Каркас
Материал
1 этаж
3 спальни, 2 санузла
От 3 739 000 ₽
Стоимость за тёплый
контур с террасой
контур с террасой
О проекте
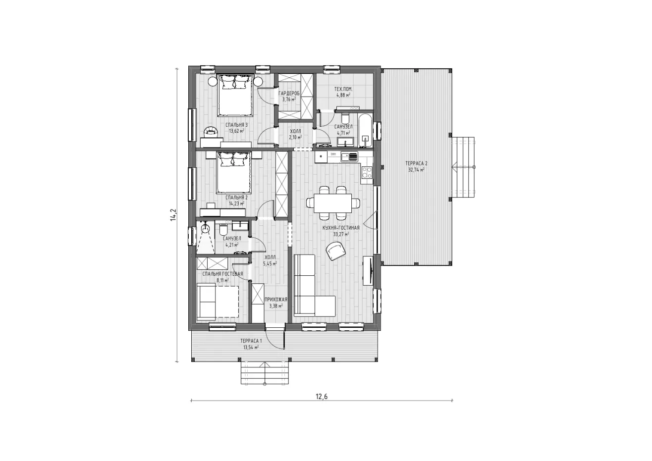
Современный коттедж общей площадью 145 м² с односкатной крышей, тремя спальнями, просторным крыльцом и крытой террасой. Проект ВАНГОГ выглядит эффектно и отвечает современным требованиям по эргономике внутреннего пространства — чтобы всем членам семьи было комфортно.
Архитекторы предусмотрели главную спальню с собственной ванной комнатой и гардеробной в приватной части дома. Спальни отделены коридорами от общественной части дома. Просторная гостиная - кухня предназначена для уютных семейных вечеров и шумных вечеринок с друзьями. А большая крытая терраса приглашает проводить на воздухе как можно больше времени. Играйте с детьми. Принимайте гостей. Приветствуйте солнце с чашкой кофе. ВАНГОГ — дом для любого настроения.
Архитекторы предусмотрели главную спальню с собственной ванной комнатой и гардеробной в приватной части дома. Спальни отделены коридорами от общественной части дома. Просторная гостиная - кухня предназначена для уютных семейных вечеров и шумных вечеринок с друзьями. А большая крытая терраса приглашает проводить на воздухе как можно больше времени. Играйте с детьми. Принимайте гостей. Приветствуйте солнце с чашкой кофе. ВАНГОГ — дом для любого настроения.
Хотите изменить планировку?
Это совсем просто! Назначьте встречу с одним из наших архитекторов и на основании ваших идей он создаст индивидуальные планировки.
Категории
Домокомплекты Типовые проекты Дома из газобетона 1 этаж 150м2 С террасой С панорамными окнами В современном стиле С котельной 3 спальни С террасой 150м2 1 этаж
Получите подробную консультацию
по нему
И мы ответим на интересующие
вопросы о проекте и комплектации
вопросы о проекте и комплектации
Если у вас остались вопросы, смело пишите нам!
Все расскажем, поможем с выбором проекта
и расчетом стоимости
Все расскажем, поможем с выбором проекта
и расчетом стоимости
Пн-Пт с 10:00 до 19:00
Санкт-Петербург, ул. Большая Зеленина 43
Наш офис, ул. Большая Зеленина, 43
Заявка отправлена!
Спасибо за уделенное время!
Не хотите ждать, пока мы свяжемся с вами?
Вы можете позвонить сами!
Вы можете позвонить сами!
В форме остались
несохраненные данные
Уверены, что хотите закрыть форму обратной связи?
