Главная -
Домокомплекты -
170 м²
Общая площадь
дома с террасой
дома с террасой
Каркас
Материал
1 этаж
3 спальни, 2 санузла
От 4 842 000 ₽
Стоимость за тёплый
контур с террасой
контур с террасой
О проекте
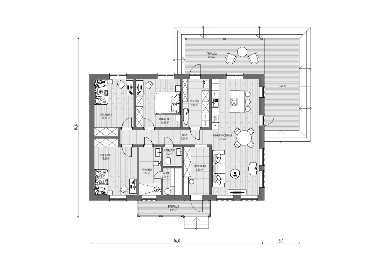
Одноэтажный коттедж в стиле скандинавского минимализма общей площадью 170 м² с двускатной крышей, наполненной светом гостиной, тремя жилыми комнатами и оригинальной террасой. В основе проекта — лаконичность, комфорт и открытость.
Дом начинается с прихожей, слева от которой располагается частное пространство, а справа — гостиная - кухня с открытой планировкой, высоким потолком, окнами в пол. Большая угловая терраса с навесом объединяет дом и окружающее пространство и приглашает наслаждаться жизнью на природе.
Чистые линии, гармония форм и естественное освещение поддерживают спокойную атмосферу загородного дома. Получился стильный и выразительный проект.
Дом начинается с прихожей, слева от которой располагается частное пространство, а справа — гостиная - кухня с открытой планировкой, высоким потолком, окнами в пол. Большая угловая терраса с навесом объединяет дом и окружающее пространство и приглашает наслаждаться жизнью на природе.
Чистые линии, гармония форм и естественное освещение поддерживают спокойную атмосферу загородного дома. Получился стильный и выразительный проект.
Хотите изменить планировку?
Это совсем просто! Назначьте встречу с одним из наших архитекторов и на основании ваших идей он создаст индивидуальные планировки.
Категории
Домокомплекты Типовые проекты 1 этаж 150м2 С террасой С панорамными окнами 3 спальни С террасой 150м2
Получите подробную консультацию
по нему
И мы ответим на интересующие
вопросы о проекте и комплектации
вопросы о проекте и комплектации
Если у вас остались вопросы, смело пишите нам!
Все расскажем, поможем с выбором проекта
и расчетом стоимости
Все расскажем, поможем с выбором проекта
и расчетом стоимости
Пн-Пт с 10:00 до 19:00
Санкт-Петербург, ул. Большая Зеленина 43
Наш офис, ул. Большая Зеленина, 43
Заявка отправлена!
Спасибо за уделенное время!
Не хотите ждать, пока мы свяжемся с вами?
Вы можете позвонить сами!
Вы можете позвонить сами!
В форме остались
несохраненные данные
Уверены, что хотите закрыть форму обратной связи?
