дома с террасой
контур с террасой
О проекте
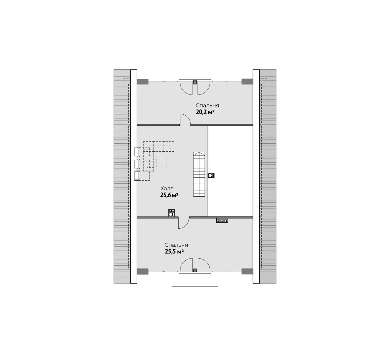
ГБ-М-23 - функциональный дом с пропорциональной, элегантной и красивой формой. Огромным преимуществом Аморы является возможность использования ее как одноэтажного дома или - после предварительной адаптации проекта - с полезным мансардным этажом, а также возможность отделки в два этапа. Благодаря этому вы успешно адаптируете этот дом под свои потребности. В начале вашей семейной жизни центром дома будет являться большая, остекленная гостиная с столовой и удобная кухня с окнами. Занимаясь делами или приготовлением, вы можете заглянуть, вернулись ли дети со школы или приехал ли курьер с долгожданным пакетом.
На первом этаже также удобная частная зона, отделенная от дневной зоны, с тремя уютными спальнями, двумя удобными ванными комнатами, большим хозяйственным помещением и удобной кладовой. Когда дети вырастут, вы можете обустроить им комнаты на мансардном этаже, где они будут иметь свое независимое пространство, а когда они будут жить в собственном доме, вы снова будете использовать только первый этаж. Благодаря такому решению вы оцените, например, то, что через несколько лет, когда сил станет меньше, площадь для повседневной уборки также будет меньше.
Что входит в стоимость
Фундамент
Стены
Перекрытия
Крыша
Окна и двери
Организация
- Разбивка осей дома и вынос основных точек строения
- Контроль соответствия нормам размещения на участке
- Согласование расположения с собственником и УК
- Устройство гидроизоляционного слоя
- Устройство утепления
- Установка опалубки
- Промежуточная проверка геометрической точности установки опалубки и соответствия проекту
- Разводка закладных под коммуникации под плитой (канализация, вода, электричество, прочие закладные)
- Армирование плиты в 2 слоя по проекту КЖ с учетом точеной и распределенной нагрузки
- Промежуточная приемка-сдача скрытых работ (армирование ж/б плиты)
- Заливка бетона В25 (М350) с виброуплотнением
- Контроль набора прочности (с учетом погодных условий)
- Финальная приемка техническим надзором компании
- Сдача этапа работ заказчику
- Передача на следующий этап работ внутри компании
- Расчет нагрузок по проекту дома, с обязательным учетом проведенных исследований
- План фундамента
- План армирования
- План закладных под коммуникации
- Узлы, разрезы с размерами
- Спецификации
- Выемка котлована (с учетом минимум +1 метр в каждую сторону)
- Подготовка песчано-щебеночной подушки основания с прокладкой геотекстиля
- Геодезическая съемка участка. Геодезическое обследование земельного участка (топосъемка) применяется для установления границ объекта и создания подробного плана, в том числе с учетом перепада высот, существующих деревьев и т.п. Этот процесс позволяет выявить особенности ландшафта и учесть их при проектировании и строительстве.
- Геология участка (исследование грунта). Это комплекс работ, направленных на изучение особенностей рельефа, анализ структуры грунта и условий строительства на определенном участке.
- Проект АС (часть для газобетонных домов)
- Содержание (ведомость чертежей проекта), пояснительная записка
- Общий вид, фасады
- Кадочный план, развертки стен
- Схема расположения перемычек
- Узлы, технологические решения
- Газоботенные блоки
- Специальная кладочная смесь для газобетона
- Утепление примыканий и несущих элементов ЭППС
- Монолитные ж/б перемычки в проемах
- Штукатурка
- Планкен хвойный, окрашенный финским маслом
- Финальная приемка техническим надзором компании
- Сдача этапа работ заказчику
- Передача на следующий этап работ внутри компании
- Проект КЖ (Конструкции железобетонные):
- План перекрытия, столбов и колонн
- План армирования
- План закладных под коммуникации
- Узлы, разрезы с размерами
- Спецификации
- Опалубка
- Армирование по проекту КЖ
- Заливка бетона В25 (М350) с виброуплотнением
- Финальная приемка техническим надзором компании
- Сдача этапа работ заказчику
- Передача на следующий этап работ внутри компании
- Проект КД
- Расчет нагрузок по проекту дома
- План стропильной системы
- Сборочные чертежи
- Узлы крепления деревянных элементов
- Задание на производство (КДД)
- Проект АР
- Гидро-ветрозащитная мембрана Delta (пр-во Германия, см. Сертификаты), с проклейкой швов
- Утепление перехлестное 250 мм каменная фата Rockwool/Paroc
- Пароизоляционная внутренняя мембрана Delta (пр-во Германия, см. Сертификаты), с проклейкой швов
- Обрешетка и контробрешетка из сухой строганной древесины
- Несущее основание OSB-12
- Подкладочный гидроизоляционный ковер Fel'X
- Гибкая Битумная черепица Docke с добротными элементами
- Финальная приемка техническим надзором компании
- Сдача этапа работ заказчику
- Передача на следующий этап работ внутри компании
- Финальная приемка техническим надзором компании
- Сдача этапа и всего комплекса работ заказчику
Хотите изменить планировку?
Категории
Эскизные проекты Типовые проекты 2 этажа С террасой С панорамными окнами 200м2 Дома из газобетона В современном стиле С котельной 2 этажа
Получите подробную консультацию
по нему
вопросы о проекте и комплектации
Все расскажем, поможем с выбором проекта
и расчетом стоимости
Заявка отправлена!
Спасибо за уделенное время!
Вы можете позвонить сами!
