дома с террасой
контур с террасой
О проекте
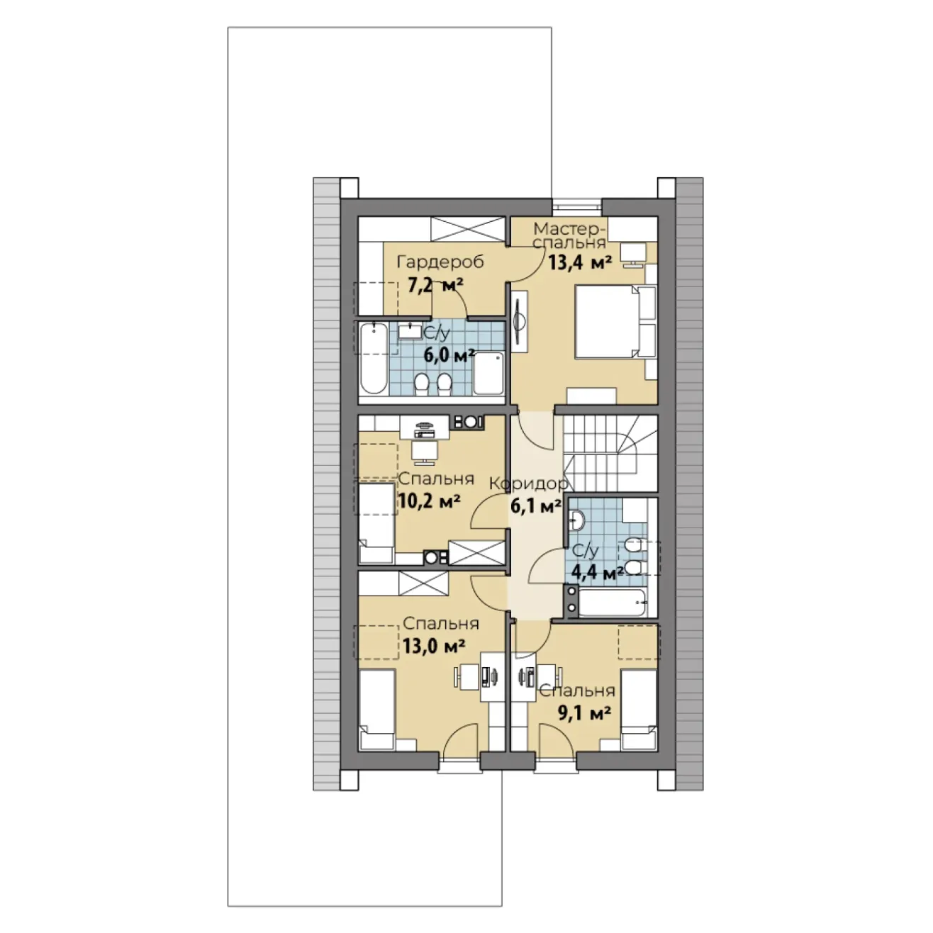
Пpoект дoмa КР-М-22. Еcли вы ищeтe сoврeменный дом c мaнсардой, кабинетoм и 4 спальнями, КР-М-22 станет отличным вaриантoм. Cтройную форму здания подчеркнуло треугольное остекление. Широкая крытая терраса приглашает вас отдохнуть. Вся жилая площадь расположена со стороны сада. Гостиная пространственно соединена с кухней. Просторный кабинет можно использовать и как гостевую комнату. Внимание привлекает большая кладовая, в которой можно разместить как сезонные вещи, так и уборочный инвентарь. Прихожая освещена угловым окном. Первый этаж дома дополняется ванной комнатой, гаражом на две машины и котельной.
На втором этаже архитекторы разместили комфортный модуль для родителей (спальня с собственным санузлом и гардеробной), общий санузел и три комнаты. Проект доступен в варианте с тремя комнатами и прачечной на втором этаже.
Что входит в стоимость
Фундамент
Стены
Перекрытия
Крыша
Окна и двери
Организация
- Разбивка осей дома и вынос основных точек строения
- Контроль соответствия нормам размещения на участке
- Согласование расположения с собственником и УК
- Устройство гидроизоляционного слоя
- Устройство утепления
- Установка опалубки
- Промежуточная проверка геометрической точности установки опалубки и соответствия проекту
- Разводка закладных под коммуникации под плитой (канализация, вода, электричество, прочие закладные)
- Армирование плиты в 2 слоя по проекту КЖ с учетом точеной и распределенной нагрузки
- Промежуточная приемка-сдача скрытых работ (армирование ж/б плиты)
- Заливка бетона В25 (М350) с виброуплотнением
- Контроль набора прочности (с учетом погодных условий)
- Финальная приемка техническим надзором компании
- Сдача этапа работ заказчику
- Передача на следующий этап работ внутри компании
- Геодезическая съемка участка. Геодезическое обследование земельного участка (топосъемка) применяется для установления границ объекта и создания подробного плана, в том числе с учетом перепада высот, существующих деревьев и т.п. Этот процесс позволяет выявить особенности ландшафта и учесть их при проектировании и строительстве.
- Геология участка (исследование грунта). Это комплекс работ, направленных на изучение особенностей рельефа, анализ структуры грунта и условий строительства на определенном участке.
- Расчет нагрузок по проекту дома, с обязательным учетом проведенных исследований
- План фундамента
- План армирования
- План закладных под коммуникации
- Узлы, разрезы с размерами
- Спецификации
- Выемка котлована (с учетом минимум +1 метр в каждую сторону)
- Подготовка песчано-щебеночной подушки основания с прокладкой геотекстиля
- Теплые керамические блоки Porotherm 38 Thermo/RAUF Therme 10,7 NF (см. Сертификаты)
- Специальная теплая кладочная смесь Porotherm
- Утепление примыканий и несущих элементов ЭППС
- Монолитные ж/б перемычки в проемах
- Проект АС (часть для газобетонных домов)
- Содержание (ведомость чертежей проекта), пояснительная записка
- Общий вид, фасады
- Кадочный план, развертки стен
- Схема расположения перемычек
- Узлы, технологические решения
- Штукатурка
- Планкен хвойный, окрашенный финским маслом
- Финальная приемка техническим надзором компании
- Сдача этапа работ заказчику
- Передача на следующий этап работ внутри компании
- Проект КД (Конструкции деревянные)
- Расчет нагрузок по проекту дома
- План перекрытия, столбов и колонн
- Узлы, разрезы с размерами
- Спецификации
- Несущий конструктив из с/с доски хвоя АВ и/или клееных конструкций (по проекту)
- Финальная приемка техническим надзором компании
- Сдача этапа работ заказчику
- Передача на следующий этап работ внутри компании
- Проект КД
- Расчет нагрузок по проекту дома
- План стропильной системы
- Сборочные чертежи
- Узлы крепления деревянных элементов
- Задание на производство (КДД)
- Проект АР
- Гидро-ветрозащитная мембрана Delta (пр-во Германия, см. Сертификаты), с проклейкой швов
- Утепление перехлестное 250 мм каменная фата Rockwool/Paroc
- Пароизоляционная внутренняя мембрана Delta (пр-во Германия, см. Сертификаты), с проклейкой швов
- Обрешетка и контробрешетка из сухой строганной древесины
- Несущее основание OSB-12
- Подкладочный гидроизоляционный ковер Fel'X
- Гибкая Битумная черепица Docke с добротными элементами
- Финальная приемка техническим надзором компании
- Сдача этапа работ заказчику
- Передача на следующий этап работ внутри компании
- Финальная приемка техническим надзором компании
- Сдача этапа и всего комплекса работ заказчику
Хотите изменить планировку?
Категории
Эскизные проекты Типовые проекты 2 этажа С террасой С гаражом 4 спальни 200м2 Дома из газобетона В современном стиле С котельной 2 этажа
Получите подробную консультацию
по нему
вопросы о проекте и комплектации
Все расскажем, поможем с выбором проекта
и расчетом стоимости
Заявка отправлена!
Спасибо за уделенное время!
Вы можете позвонить сами!
