Главная -
Домокомплекты -
116 м²
Общая площадь
дома с террасой
дома с террасой
Каркас
Материал
1 этаж
2 спальни, 1 санузел
От 3 703 000 ₽
Стоимость за тёплый
контур с террасой
контур с террасой
О проекте
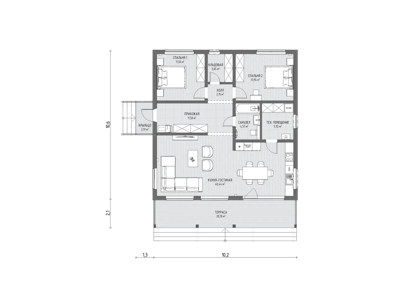
Современный коттедж в скандинавском стиле общей площадью 116 м² с разноуровневой крышей, панорамным остеклением, просторной гостиной, двумя спальнями и большой крытой террасой. Скандинавскому стилю присущи минимализм, строгость форм и линий, панорамные окна, большая терраса, естественные цвета и натуральные материалы.
Дом ПИКАССО начинается с просторной входной зоны, слева от которой расположена приватная часть дома: спальни, ванная комната с сауной, котельная, а справа — общественная, которая состоит из большой светлой гостиной - кухни с двумя выходами на террасу. Высокие потолки добавляют помещению объем. Панорамные окна наполняют гостиную светом, а окружающая природа становится частью интерьера. В кухонной зоне хватит места для кухонного острова, а рабочую поверхность можно расположить под окном.
Открытая с трех сторон терраса с навесом удваивает площадь гостиной. Здесь достаточно места для обеденной и диванной группы. В теплое время года на террасе можно проводить все время — играть с детьми, принимать гостей, встречать и провожать солнце, вести неспешные беседы и наслаждаться соловьиными трелями.
Дом ПИКАССО начинается с просторной входной зоны, слева от которой расположена приватная часть дома: спальни, ванная комната с сауной, котельная, а справа — общественная, которая состоит из большой светлой гостиной - кухни с двумя выходами на террасу. Высокие потолки добавляют помещению объем. Панорамные окна наполняют гостиную светом, а окружающая природа становится частью интерьера. В кухонной зоне хватит места для кухонного острова, а рабочую поверхность можно расположить под окном.
Открытая с трех сторон терраса с навесом удваивает площадь гостиной. Здесь достаточно места для обеденной и диванной группы. В теплое время года на террасе можно проводить все время — играть с детьми, принимать гостей, встречать и провожать солнце, вести неспешные беседы и наслаждаться соловьиными трелями.
Хотите изменить планировку?
Это совсем просто! Назначьте встречу с одним из наших архитекторов и на основании ваших идей он создаст индивидуальные планировки.
Категории
Домокомплекты Типовые проекты Дома из газобетона 1 этаж 100м2 С террасой С панорамными окнами В современном стиле С котельной 100м2 1 этаж
Получите подробную консультацию
по нему
И мы ответим на интересующие
вопросы о проекте и комплектации
вопросы о проекте и комплектации
Если у вас остались вопросы, смело пишите нам!
Все расскажем, поможем с выбором проекта
и расчетом стоимости
Все расскажем, поможем с выбором проекта
и расчетом стоимости
Пн-Пт с 10:00 до 19:00
Санкт-Петербург, ул. Большая Зеленина 43
Наш офис, ул. Большая Зеленина, 43
Заявка отправлена!
Спасибо за уделенное время!
Не хотите ждать, пока мы свяжемся с вами?
Вы можете позвонить сами!
Вы можете позвонить сами!
В форме остались
несохраненные данные
Уверены, что хотите закрыть форму обратной связи?
