148,58 м²
Общая площадь
дома с террасой
дома с террасой
Газобетон
Материал
1 этаж
3 спальни, 2 санузла, терраса
От 11 176 100 ₽
Стоимость за тёплый
контур с террасой
контур с террасой
О проекте
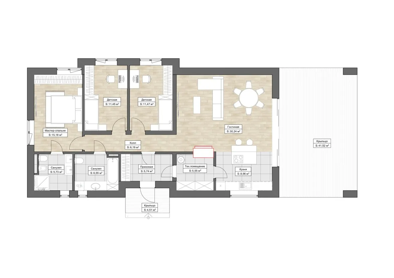
ГБ-S-45 - это проект одноэтажного дома для семьи из 4-5 человек.
Простая форма здания и двускатная крыша значительно снижают затраты на строительство. В дом входит прихожая с отдельным местом для шкафа.
Затем, проходя через коридор, мы попадаем в просторную гостиную, объединенную с столовой и открытой кухней. Гостиная имеет прямой выход на крытую террасу, на которой можно отдыхать даже в дождливые дни.
В частной части здания размещены три спальни, одна из которых имеет собственную ванную комнату.
Все это дополняется второй, общедоступной ванной комнатой и хозяйственным помещением, доступ к которому находится с боковой стороны вестибюля и кухни.
Что входит в стоимость
Фундамент
Стены
Перекрытия
Крыша
Окна и двери
Организация
Фундамент
Вынос фундамента в натуру на участке
- Разбивка осей дома и вынос основных точек строения
- Контроль соответствия нормам размещения на участке
- Согласование расположения с собственником и УК
Устройство монолитной ж/б плиты
- Устройство гидроизоляционного слоя
- Устройство утепления
- Установка опалубки
- Промежуточная проверка геометрической точности установки опалубки и соответствия проекту
- Разводка закладных под коммуникации под плитой (канализация, вода, электричество, прочие закладные)
- Армирование плиты в 2 слоя по проекту КЖ с учетом точеной и распределенной нагрузки
- Промежуточная приемка-сдача скрытых работ (армирование ж/б плиты)
- Заливка бетона В25 (М350) с виброуплотнением
- Контроль набора прочности (с учетом погодных условий)
Приемка технадзором и сдача этапа
- Финальная приемка техническим надзором компании
- Сдача этапа работ заказчику
- Передача на следующий этап работ внутри компании
Стены
Проект КР (Конструктивные решения)
- Проект АС (часть для газобетонных домов)
- Содержание (ведомость чертежей проекта), пояснительная записка
- Общий вид, фасады
- Кадочный план, развертки стен
- Схема расположения перемычек
- Узлы, технологические решения
Дом из газобетона
- Газоботенные блоки
- Специальная кладочная смесь для газобетона
- Утепление примыканий и несущих элементов ЭППС
- Монолитные ж/б перемычки в проемах
Наружная отделка
- Штукатурка
- Планкен хвойный, окрашенный финским маслом
Комплектующие, крепеж
Доставка, монтаж
Приемка технадзором и сдача этапа
- Финальная приемка техническим надзором компании
- Сдача этапа работ заказчику
- Передача на следующий этап работ внутри компании
Перекрытия
Монолитное перекрытие 
- Проект КЖ (Конструкции железобетонные):
- План перекрытия, столбов и колонн
- План армирования
- План закладных под коммуникации
- Узлы, разрезы с размерами
- Спецификации
- Опалубка
- Армирование по проекту КЖ
- Заливка бетона В25 (М350) с виброуплотнением
Комплектующие, крепеж
Доставка, монтаж
Приемка технадзором и сдача этапа
- Финальная приемка техническим надзором компании
- Сдача этапа работ заказчику
- Передача на следующий этап работ внутри компании
Крыша
Проект КР (Конструктивные решения)
- Проект КД
- Расчет нагрузок по проекту дома
- План стропильной системы
- Сборочные чертежи
- Узлы крепления деревянных элементов
- Задание на производство (КДД)
- Проект АР
Стропильная система
Из сухой строганной доски 45*195 мм и/или клееных балок и прогонов (в зависимости от расчета проекта КД)
Утепление 250 мм с мембранами
- Гидро-ветрозащитная мембрана Delta (пр-во Германия, см. Сертификаты), с проклейкой швов
- Утепление перехлестное 250 мм каменная фата Rockwool/Paroc
- Пароизоляционная внутренняя мембрана Delta (пр-во Германия, см. Сертификаты), с проклейкой швов
Финишное покрытие кровли битумная черепица Docke
- Обрешетка и контробрешетка из сухой строганной древесины
- Несущее основание OSB-12
- Подкладочный гидроизоляционный ковер Fel'X
- Гибкая Битумная черепица Docke с добротными элементами
Система снегозадержания
Система водостоков GrandLine
Желоба и трубы Grandline, цвет RAL (по проекту дома)
Подшива свесов и лобовая доска
Комплектующие, крепеж
Доставка, монтаж
Приемка технадзором и сдача этапа
- Финальная приемка техническим надзором компании
- Сдача этапа работ заказчику
- Передача на следующий этап работ внутри компании
Окна и двери
ПВХ-окна Rehau 70 мм теплые
Стеклопакеты энергосберегающие
Наружные откосы и наличники
Дверь входная
Комплектующие, крепеж
Доставка, монтаж
Приемка технадзором и сдача этапа
- Финальная приемка техническим надзором компании
- Сдача этапа и всего комплекса работ заказчику
Организация
Проживание на объекте строительства
Биотуалет с обслуживанием
Вывоз мусора
Хотите изменить планировку?
Это совсем просто! Назначьте встречу с одним из наших архитекторов и на основании ваших идей он создаст индивидуальные планировки.
Получите подробную консультацию
по нему
И мы ответим на интересующие
вопросы о проекте и комплектации
вопросы о проекте и комплектации
Если у вас остались вопросы, смело пишите нам!
Все расскажем, поможем с выбором проекта
и расчетом стоимости
Все расскажем, поможем с выбором проекта
и расчетом стоимости
Пн-Пт с 10:00 до 19:00
Санкт-Петербург, ул. Большая Зеленина 43
Наш офис, ул. Большая Зеленина, 43
Заявка отправлена!
Спасибо за уделенное время!
Не хотите ждать, пока мы свяжемся с вами?
Вы можете позвонить сами!
Вы можете позвонить сами!
В форме остались
несохраненные данные
Уверены, что хотите закрыть форму обратной связи?
