205,91 м²
Общая площадь
дома с террасой
дома с террасой
Клееный брус
Материал
2 этажа
Стоимость за тёплый
контур с террасой
контур с террасой
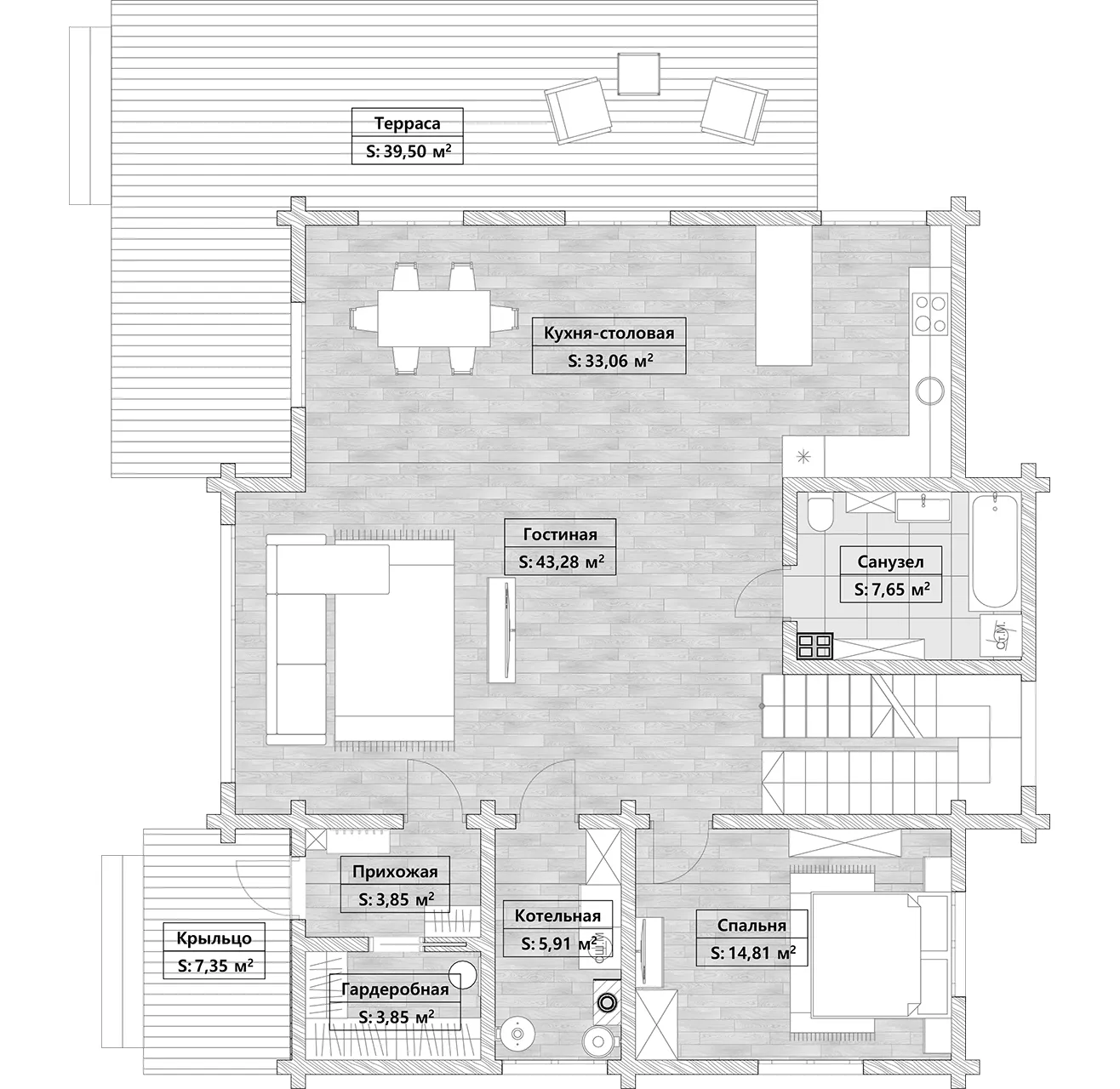
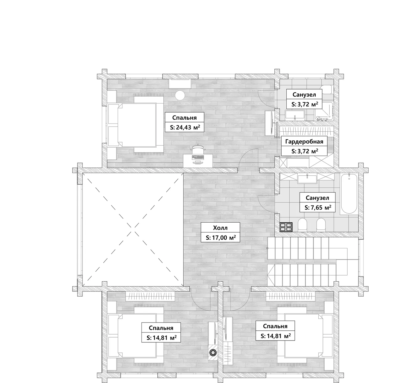
О проекте
Планировка
Хотите изменить планировку?
Это совсем просто! Назначьте встречу с одним из наших архитекторов и на основании ваших идей он создаст индивидуальные планировки.
Получите подробную консультацию
по нему
И мы ответим на интересующие
вопросы о проекте и комплектации
вопросы о проекте и комплектации
Если у вас остались вопросы, смело пишите нам!
Все расскажем, поможем с выбором проекта
и расчетом стоимости
Все расскажем, поможем с выбором проекта
и расчетом стоимости
Пн-Пт с 10:00 до 19:00
Санкт-Петербург, ул. Большая Зеленина 43
Наш офис, ул. Большая Зеленина, 43
Заявка отправлена!
Спасибо за уделенное время!
Не хотите ждать, пока мы свяжемся с вами?
Вы можете позвонить сами!
Вы можете позвонить сами!
В форме остались
несохраненные данные
Уверены, что хотите закрыть форму обратной связи?
