Главная -
Домокомплекты -
55 м²
Общая площадь
дома с террасой
дома с террасой
Каркас
Материал
1 этаж
1 спальня, 1 санузел
От 1 503 000 ₽
Стоимость за тёплый
контур с террасой
контур с террасой
О проекте
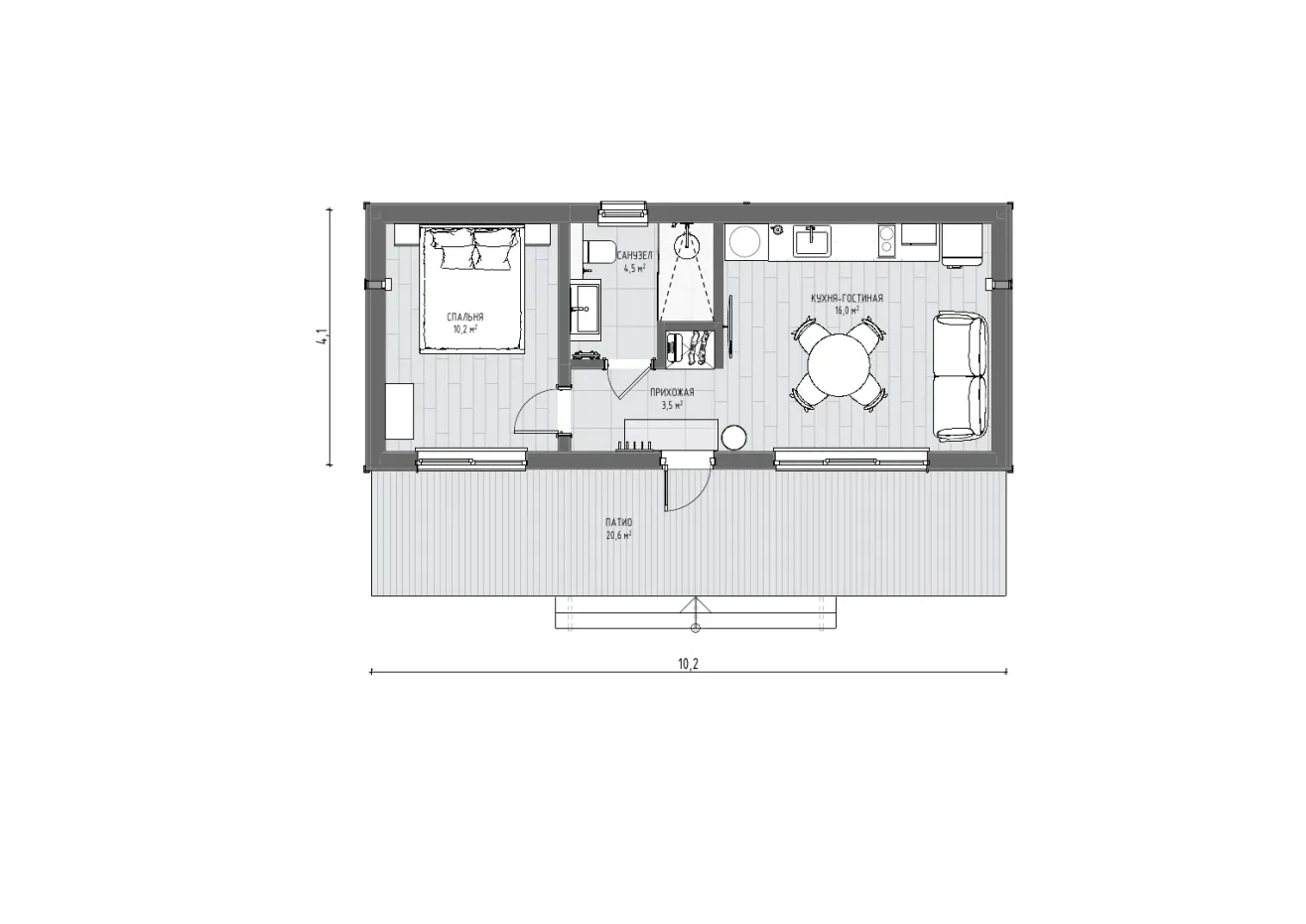
Одноэтажный дом под односкатной кровлей с большими свесами и просторным патио, которое примыкает к главному фасаду. В доме большие окна и высокий потолок по стропилам. Теплая площадь дома — 34,20 м². Внутри есть кухня-гостиная, санузел, прихожая, спальня. Здесь будет удобно холостяку, семейной паре любого возраста и родителям с одним и двумя детьми.
Чтобы быть продуктивным на работе, принимать правильные и взвешенные решения. Фонтанировать идеями. Помогать коллегам. Все успевать, быть позитивным, не болеть и меньше уставать. Чтобы хватало времени на семью и игры с детьми. Нужно хорошо отдыхать. Мы предлагаем вам особенное место для отдыха и релаксации — это дома серии АТМОСФЕРА от ДОМ ТН. В России активно развивается туристическая отрасль. Парк-отели строят в самых прекрасных и удивительных местах. Оглядитесь, один из них точно открыт рядом с вами.
Возможно рассвет в горах даст импульс новому движению.
Проект АТМОСФЕРА 34 — заряжайтесь энергией и идеями.
— одноэтажный дом с патио;
— общая площадь — 54,82 м²;
— теплая площадь — 34,20 м²;
— внутри: гостиная - кухня, спальня, санузел, прихожая;
— площадь террасы — 20,62 м²;
— вместимость — 4 + 1 человек с дополнительным спальным местом;
— комплектация: объемный деревянный фасад, панорамные окна, односкатная кровля с пластиковым водостоком, деревянный настил террасы, отделка цоколя фасадными панелями по периметру;
— один вход.
Чтобы быть продуктивным на работе, принимать правильные и взвешенные решения. Фонтанировать идеями. Помогать коллегам. Все успевать, быть позитивным, не болеть и меньше уставать. Чтобы хватало времени на семью и игры с детьми. Нужно хорошо отдыхать. Мы предлагаем вам особенное место для отдыха и релаксации — это дома серии АТМОСФЕРА от ДОМ ТН. В России активно развивается туристическая отрасль. Парк-отели строят в самых прекрасных и удивительных местах. Оглядитесь, один из них точно открыт рядом с вами.
Возможно рассвет в горах даст импульс новому движению.
Проект АТМОСФЕРА 34 — заряжайтесь энергией и идеями.
— одноэтажный дом с патио;
— общая площадь — 54,82 м²;
— теплая площадь — 34,20 м²;
— внутри: гостиная - кухня, спальня, санузел, прихожая;
— площадь террасы — 20,62 м²;
— вместимость — 4 + 1 человек с дополнительным спальным местом;
— комплектация: объемный деревянный фасад, панорамные окна, односкатная кровля с пластиковым водостоком, деревянный настил террасы, отделка цоколя фасадными панелями по периметру;
— один вход.
Хотите изменить планировку?
Это совсем просто! Назначьте встречу с одним из наших архитекторов и на основании ваших идей он создаст индивидуальные планировки.
Получите подробную консультацию
по нему
И мы ответим на интересующие
вопросы о проекте и комплектации
вопросы о проекте и комплектации
Если у вас остались вопросы, смело пишите нам!
Все расскажем, поможем с выбором проекта
и расчетом стоимости
Все расскажем, поможем с выбором проекта
и расчетом стоимости
Пн-Пт с 10:00 до 19:00
Санкт-Петербург, ул. Большая Зеленина 43
Наш офис, ул. Большая Зеленина, 43
Заявка отправлена!
Спасибо за уделенное время!
Не хотите ждать, пока мы свяжемся с вами?
Вы можете позвонить сами!
Вы можете позвонить сами!
В форме остались
несохраненные данные
Уверены, что хотите закрыть форму обратной связи?
